베어링사업부
> 베어링사업부 > 기술정보
기술정보
끼워맞춤
CRU형의 끼워맞춤

CRU형은 기본적으로 끼워맞춤을 필요로 하지 않지만, 위치결정정도 등이 필요한 경우에는
끼워맞춤 h7,H7을 권장합니다.

CRU형의 끼워맞춤

CRB, CRE, CRA형의 끼워맞춤은 표1을 권장합니다.

표1 CRB, CRE형, CRA형 끼워맞춤
레이디얼 클리어런스 사용조건 하우징
C0 내륜 회전 하중 보통하중 h5 H7
충격과 모멘트가 큰 경우 h5 H7
외륜 회정 하중 보통하중 g5 Js7
충격과 모멘트가 큰 경우 g5 Js7
C1 내륜 회전 하중 보통하중 j5 H7
충격과 모멘트가 큰 경우 k5 Js7
외륜 회전 하중 보통하중 g6 Js7
충격과 모멘트가 큰 경우 h5 K7
주) CC0클리어런스 경우의 끼워맞춤은 예압이 과다가 되므로 억지끼움이 되지 않도록 사용하시기 바랍니다.
로보드의 관절부나 선회부에 CC0클리어런스를 선정한 경우는 끼워맞춤을 g5, H7을 권장합니다.
USP 등급의 끼워맞춤
표2 USP등급의 끼워맞춤
레이디얼 클리어런스 사용조건 하우징
CC0 내륜 회전 하중 h5 J7
외륜 회전 하중 g5 Js7
C0 내륜 회전 하중 j5 J7
외륜 회전 하중 g5 K7
주) 베어링의 외경·내경을 측정한 것을 토대로 억지끼워맞춤 할 것을 권장합니다.
CRA-C형의 대한 끼워맞춤
CRA-C형의 끼워맞춤은 표3을 권장합니다
레이디얼 클리어런스 사용조건 하우징
CC0 내륜 회전 하중 h5 J7
외륜 회전 하중 g5 Js7
C0 내륜 회전 하중 j5 J7
외륜 회전 하중 g5 K7
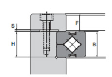
뉴름 플랜지와 누름 볼트

누름플랜지의 두께(F), 플랜지부의 클리어런스(S)의 값은 아래의 치수를 기준으로 하시기 바랍니다.
또, 누름볼트의 개수는 많을수록 안정되므로 표4를 기준으로 등배로 배치하시기 바랍니다.

F=B*0.5에서 B*1.2
H=B
S=0.5mm

축과 하우징의 재료가 경합금의 경우에는 누름 플랜지의 재료는 철재로 하는 것을 권장합니다.
누름 플랜지의 체결은 풀림이 없도록 토크 렌치 등으로 견고히 체결하여 주십시오.
하우징이나 누름 플랜지가 일반적인 중경강 재료일 때의 체결 토크를 표5에 나타냅니다.

누름 플랜지와 누름 볼트 그림
누름 플랜지와 누름 볼트 그림
표4 누름 볼트의 수와 볼트 사이즈 (단위: mm)
외륜외경치수(D) 볼트의 수 볼트 사이즈(참고값)
초과 이하
- 100 8 이상 M3~M5
100 200 12 이상 M4~M8
200 500 16 이상 M5~M12
500 - 24 이상 M12 이상
표5 볼트의 체결토크 ( 단위:N-m )
나사 호칭 체결토크 나사 호칭 체결토크
M3 2 M10 70
M4 4 M12 120
M5 9 M16 200
M6 14 M20 390
M8 30 M22 530